X

[MAXIMUM_COMPARE_PRODUCTS]

Produse
Produse

Robinet golire alama cromat cu sfera, Ferro, D. 1/2"FE_ZSS1

Cod produs : 45204
compara...
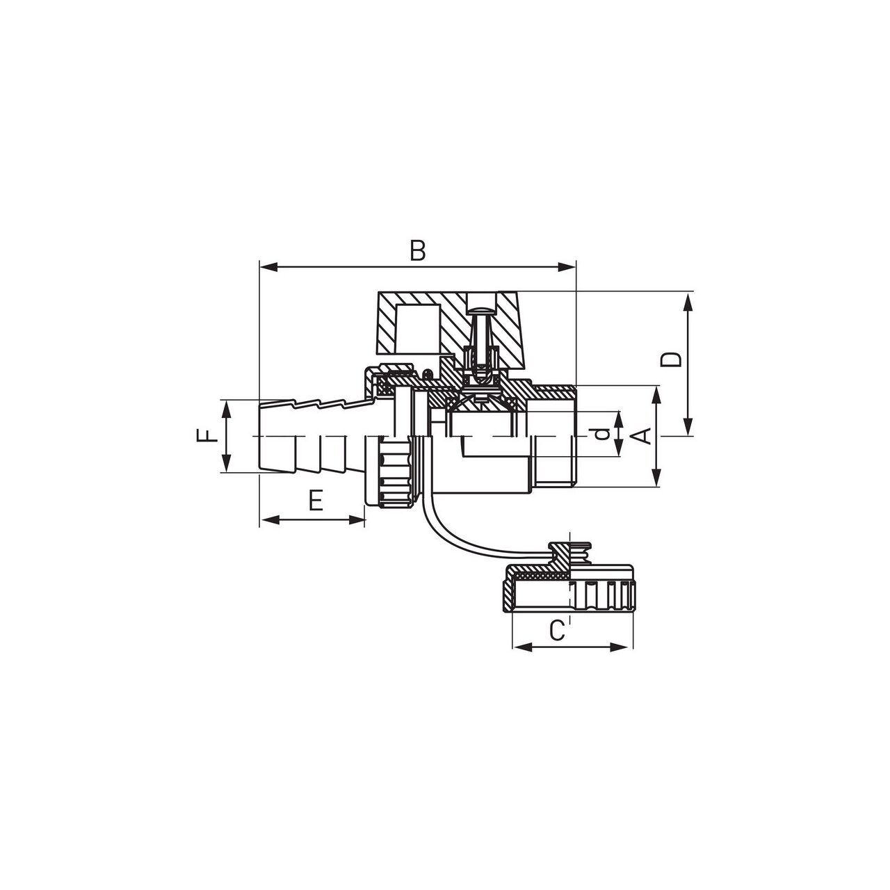
Descriere produs

  • cu dop si portfurtun
  • material corp si sfera: alama
  • garnituri etansare sfera din teflon PTFE
  • presiune nominala: 2,5 MPa (25 bar)
  • temperatura maxima de lucru: 100°C
  • agent pentru robineti: apa
Cod producator DN d [mm] A B [mm] C D [mm] E [mm] F [mm]
ZSS1 15 10 G1/2 69 G3/4 29,5 ~23,5 14,6

Comentarii
Nu sunt comentarii
Scrie un comentariu
înregistrează-te

Înscrieți-vă la newsletter-ul nostru.

powered by teamshare
© Copyright 2026 bilden.ro
designed by headstart.ro
Preț 481,00 Lei
Stoc limitat
Preț 702,90 Lei
Stoc limitat